
ディテールはおもしろい。「松原ハウス」の玄関扉。あの光る把手の仕掛けは自分ならどうするかと悩んでみた。とはいえ「悩むより聞け」というのが編集者のスタンスだ。それでも「電池だろう」とか「タイマーだろうか」とか仮説は立ててみた。
で、菊地宏さんに聞いた。
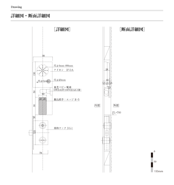
電源はヒンジから電線を入れている。合板2枚で補強材を挟んだ40mm厚の扉の中に、29mm厚のスペースをつくって器具を押し込んだ。電球は5ワット。点灯消灯は日照センサーによる。自分で秋葉原へ行って買ってきて取り付けた。「大工さんの手間を煩わせることもないから」と菊地さん。ちなみにセンサーは500~600円のものだとか。電球の取り替えは小口に設けた点検口から。
明かりの上にはインターフォンも入っている。配線にあたっては、すべて既存の壁側はいじらないで入れている。下手にいじると壁は崩れたりしそうだから。
この把手の発想の原点は、もしかしたらヨーロッパの電車の把手で見たのではないかなという。
なお、電球は何度か切れている。学生が見学に行って教えてくれたり、自分が所用で出かけて気づいて取り替えているという。菊地さん、なんとも面倒見のいい建築家だ。






