
壁を斜めに配置して視線を制御する案もあったが、行き着いたのは長手方向の両側に壁を立て、1階は完全にオープンな共用空間とし、2階にプライバシーを要する個室(寝室)を配する形式だった。
これを可能にしたのが構造設計者・佐藤淳さんのアイデアである。ツーバイ材を平使いにした柱を90㎝ピッチで立て、その両側を構造用合板で挟み、柱脚は剛接合とすることで、厚さ62㎜の薄い壁が可能になり、斜材や控え壁がいっさい不要な、有効幅が大きくて清々としたトンネル状の空間が実現した。
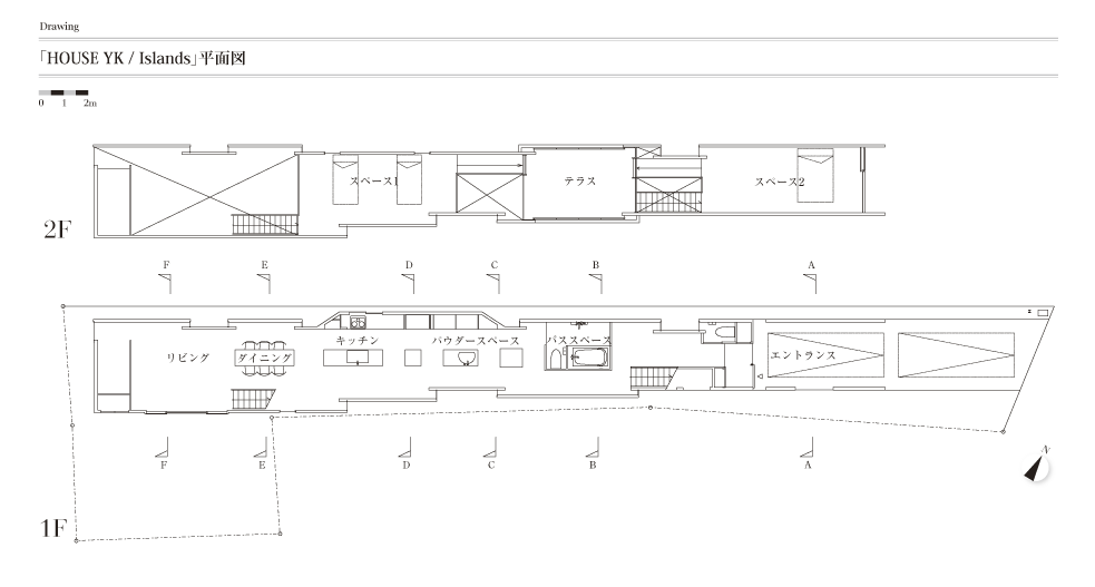
入り口に立つとはるか25m先の端部の壁まで見通せる空間の中央に、5つのコンクリート壁が腰の高さまで立ち上がっている。浴室(浴槽+便器)、洗濯台(洗濯機収納)、洗面台、調理台、流し台である。そのあいだに挟まれて置かれた木製の可動の台(着替え収納)と先端に置かれた食卓を加えると合計7つの島が、点々と直列に配され、列島を形成している。
普通、これらの多くは壁側に寄せられ、半ば、あるいは完全に囲われて配されるはずだが、ここでは中央に引き出され、オブジェのように並べられている。
既視感のない光景。これによって限りない開放感が維持され、活動や視線が分断されずに家族の親近性を高めることができ、それでいて入浴、洗面、調理、食事といった異なる行為に適した場がゆるやかに秩序づけられている。巧妙な仕組みである。
この仕組みがアイデア倒れにならず、現実に成立しているのは、壁を少し外に張り出してガスコンロや冷蔵庫、収納を配したり、玄関脇に個室のトイレを用意したり、台の高さや幅の寸法を細かく調整したりという細かな配慮のためと思われる。なお浴室はガラスで仕切られていてカーテンも付いているが、たいていはカーテンを下ろさずに使われているという。




